Tokyo City Univ.
Dept. of Urban Studies
Interior Planning LAB*

Tokyo City Univ. Dept. of Urban Studies Interior Planning LAB*

 研究室デザインワーク/DESIGN_2

 本ページでは、担当教員のこれまでの所属大学である東京都市大学、滋賀県立大学、千葉大学での各研究室の学生によるデザインワークを掲載しています。建築の実施設計や基本設計(計画案も含む)、インテリアデザインコンペや共同研究に基づくデザイン提案等も含まれています。また学生作品に関しては、卒業設計や修士設計をはじめ、学生主体の社会活動関連も含まれています。どれも時代を反映した興味深いアイデアに満ちていますので、下記から気になるものがあれば詳細を見てみて下さい。

 

 
 
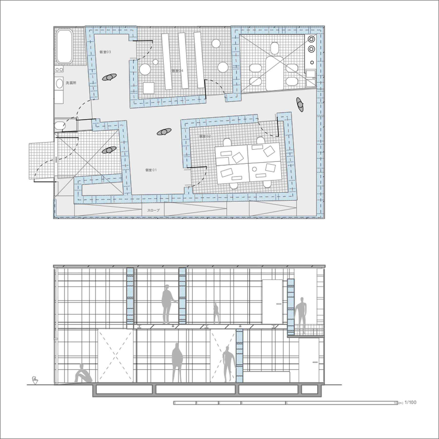
「団地の記憶が創るまち」

高柳英明研究室卒業計画
#01
#02
#03
#04
#05

 
 
「ヘドロの灯〜新たな湖上生活の提案〜」

高柳英明研究室卒業計画
#01
#02
#03
#04
#05

 
 
「ふれあう時間-職場と保育所の新たな関係-」

高柳英明研究室卒業計画
#01
#02
#03
#04
#05

 
 
「お母さんの種味空間から学ぶ食育生活」

インテリア・デザインコンペ作品
#01
#02
#03
#04
#05

 
 
「緑 育 学 校」

高柳英明研究室卒業計画
#01
#02
#03
#04
#05

 
 
「Re-built Barrier」

建築知識デザインコンペティション:バリアフリー住宅
#01
#02
#03
#04
#05

 
 
「難波劇場駅-Smart Transit-」

高柳英明研究室卒業計画
#01
#02
#03
#04
#05

 
 
「マチと融和する高架橋」

高柳英明研究室卒業計画
#01
#02
#03
#04
#05

 
 
「電子システム工学科新棟」

滋賀県立大学環境建築デザイン学科 教員+修士コアチーム
#01
#02
#03
#04
#05
#06
#07
#08
#09

 
 
「国際コミュニケーション学科新棟」

滋賀県立大学環境建築デザイン学科 教員+修士学生コアチーム
#01
#02
#03
#04
#05
 

 
 
「ポケット・オアシス」

第1回ストックスペース・ビジネスモデルコンペ
#01
#02
#03
#04
#05

 
 
「大家族がつなぐ道」

長谷工すまいのデザインコンペティション
#01
#02
#03
#04
#05

 
 
「老少混交」

高柳英明研究室卒業計画
#01
#02
#03
#04
#05

 
 
「絵本のびょういん」

高柳英明研究室卒業計画
#01
#02
#03
#04
#05

 
 
「123」

新建築住宅設計競技
#01
#02
#03
#04
#05

 
 
「わたしの庭は、あなたの玄関」

長谷工すまいのデザインコンペティション
#01
#02
#03
#04
#05
 

 
 
「日本・韓国・セビリア交流国際建築ワークショップ2012」

長浜市黒壁ストリート アーバンデザイン
#01
#02
#03
#04
#05
 

 
 
「日韓交流国際建築ワークショップ2010」

近江八幡水景景観アーバンデザイン
#01
#02
#03
#04
#05
 

 
 
「日韓交流国際建築ワークショップ2011」

世界遺産「良洞マウル」ウエルカムセンターデザイン
#01
#02
#03
#04
#05
 

 
 
「駅農-そう遠くない未来、皆は農業を楽しむ-」

高柳英明研究室卒業計画
#01
#02
#03
#04
#05
 

 
 
「お祭教育-山車のある小学校-」

高柳英明研究室卒業計画
#01
#02
#03
#04
#05
 

 
 
「Tiny Architecture Project」

湖風祭学生デザインイベント計画(高柳研究室+1回生)
#01
#02
#03
#04
#05